软件概述
Sver清单计价软件全面执行GB50500-2013、2008、2003规范,是《建设工程工程量清单计价规范》的配套软件。 软件覆盖30多个省市配额,支持全省各城市、各主要配额,并提供目录定价、固定定价、综合定价等多种定价方式。 它适用于准备项目大纲、概算、结算和投标报价。 软件提供二次开发功能,可以定制计费流程和报表,并支持撤消和恢复操作。 专业版提供前期成本审核、指标分析、计量支付功能。
产品特点
1.覆盖全省30多个省市,不同时期、不同专业的配额库
在全省统一平台的基础上提供二次开发功能,保证了软件的通用性,可以满足不同地区、不同专业的特殊定价需求; 覆盖30多个省市的配额,支持省内所有城市、各大专业配额,学一个软件,就能做全省范围的定价。

2.支持清单定价和固定费率定价,并提供清单定价转换为固定费率定价的功能。

3.支持多文档操作,实现不同项目文件之间的快速数据复制

注:所有操作均可撤消或重做,并手动导航到上一个操作页面和光标位置。
4、自动记录用户操作并生成用户补充库:
保存补充定额库、补充工料机库、清单与方法库;
手动保存材料信息调价记录和主要材料使用记录。

5.配额库包含标准转换,记录转换过程,并可以逐步撤消转换操作。

6.调价快,材料调价更快
通过快速调价功能,可以快速调整建设工程和单元工程的单价或按比例调整工程造价。

7、项目自检功能让投标更安全
通过项目自检,可以避免工作疏忽,并可以通过单位项目导出、导出、项目合并、版本管理等功能实现多人协作。 清单编码唯一性检测、投标工程量清单一致性检测、清单价格差异检测等多种检测功能。

8、招标文件与招标文件一致性检测,智能、安全
通过对投标报价和五份投标清单中可能存在的错误和遗漏进行统一检测,可以防止因操作失误而废标。

9、复制清单价格和分组功能,不仅实现了同行业同一清单的快速报价,而且消除了同一清单不同报价的风险。

10、整体工程荷料机可实现“荷料机合并”、“统一调价”功能,杜绝不同单位同种物料不同报价的风险。

11.招聘、招标文件版本管理,可以查看不同版本之间的差异并生成差异说明。

12、指标分析,让数据说话。
使用专业的指标分析模板,对单位工程计价文件清单、材料、成本等进行分析估算,快速输出各项经济指标和主要工程量、技术指标。 主要用于分析项目各项指标,快速确定项目成本水平。
1、外部建筑、装饰、安装、市政、公路、桥梁等各类专业指标分析模板,以及各类指标与清单、定额、工料机之间的估算关系;
2、指标模板可由用户独立维护;
3、只要您有完整的定价文件,就可以快速估算并输出各种指标。

13. 初步审核,差异就在眼前
采用比较式初审方式,实时对比审批数据,预估增量和坏账,并用颜色标记差异,为手动标注审批数据提供转换信息,辅助标注初审指令,提供初步审批指令审查多种格式的报告。 主要用于项目概要预审、预付款结算等前期审核工作。

14、计量付款助您轻松处理工程进度款估算
输入付款周期内已完成的工程量或累计已完成的工程量,估算每个付款周期的成本、累计成本、成本比率,并提供各种计量和付款格式的报表。

概述
Sver的三维测量软件是国外第一个基于AutoCAD平台开发的土木工程测量软件。 主要应用于工程招标、施工、竣工阶段的工程量估算业务。 Sver 3D Calculation是目前唯一能够同时输出土建预算和钢筋取样的主流测量软件。 在同一软件中实现基本土方测量、结构测量、施工测量、装修测量、钢筋测量等。 审核、进度管理、正版CAD平台八大功能,杜绝图纸重复查看、预制构件重复定义、设计变更时漏修改,实现一图多算、一图多用、一图多对,全面提高计算定量效率。 该软件易学易用,内置全省配额估算规则。 可靠、详细,与定额完全一致,无需进一步调整。 由于软件采用三维建模方法,整个计算过程可以可视化,所有项目都可以三维展示,以最真实的方式模拟现实。
产品特点
1.率先支持64位系统,轻松计算大型项目
全省率先支持64位Win7和Win8操作系统斯维尔计价软件教程,充分利用笔记本硬件优势轻松估算大型项目。
2、CAD识别计算量,计算效率倍增
基于CAD平台的三维计算,采用全球领先的CAD地图识别技术,无缝共享CAD电子图纸数据。 该软件除了识别不规则二维CAD图纸、快速估算土建、钢筋工程工程量外,还可以一键识别三维建筑设计图纸。 (图1、图2)

图1

图二
3.图纸对比功能,快速发现图纸差异
图纸比对是专门解决图纸版本多、图纸比对困难、成本评估困难等问题的功能。 它通过比较新版本图纸与旧版本图纸生成差异报告,并标记新版本图纸中的差异位置,以快速发现图纸中的变化。 (图3)

图3
4、图转量功能可以快速检测模型的正确性。
数字与数量,专门为提高初审效率和检验准确性而设计的功能。 它通过将图纸数据与模型预制构件数据进行对比,生成图转工量报告,并在图中标记图纸与模型预制构件的差异,以达到初步审查工量模型正确性的目的。 (图4)

图4
5、快速整理通道,随意“画”出各种通道
整体走道的一键布局功能,可以让您自由选择各种走道样式,同时可以一键布局多层走道。 它还具有“画”楼梯的功能,高效、快捷、灵活。 (图5)

图5
6、工程数据人工比对,审核验证更高效
该软件附带一个项目比较模块,可以导出不同人完成的同一项目。 软件智能分析两个工程各层及各类预制构件的工程量或物理量的差异,以及钢筋的差异。 可以实时进行初步审核并输出报告。 工作更加智能、高效。 (图6)

图6
7.手动挂机方式,快速定价的好帮手
对于手动挂钩方式,除了一键挂钩清单外,软件还设有配额分项,手动准确描述项目特征,并可手动输出钢材配额汇总表。 手动挂接方式模板开放,灵活多变,绝对实用。
8、连体坡
通过勾画坑口、设置参数,快速生成坑基础,完美解决坑基础、连体坑基础的模型构建以及钢筋的智能估算。 (图7)

图7
9. 向预制组件添加腰部
提供梁、墙和条形基础等预制构件的悬吊模型和计算。 兼容业界常用的吊架设计方案,无缝解决预制构件、钢筋的吊架估算。 (图8)

图8
10、柱加固方法
对比柱表钢筋大样图,利用软件提供的钢腰线轮廓和钢筋编辑系统,快速生成柱表钢筋估算模型,同时可以查看三维钢筋。 (图9、图10)

图9

图10
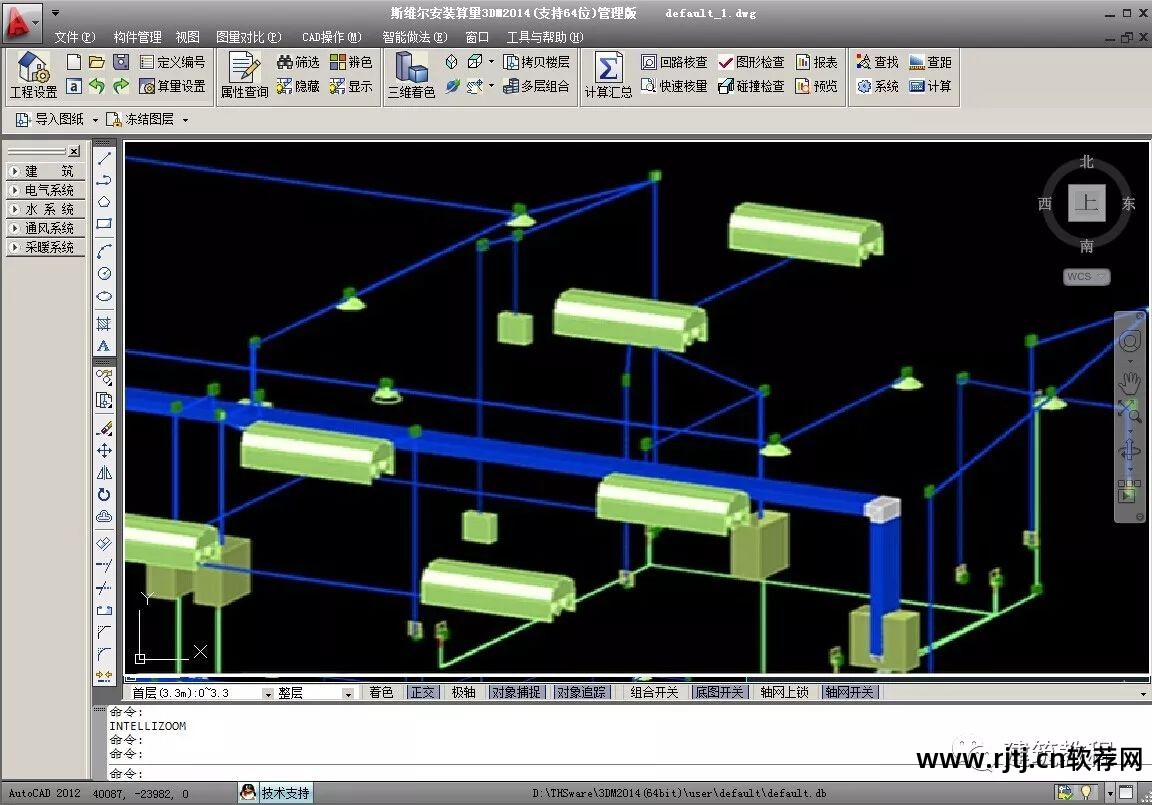
概述
Swell安装计算是一套成熟领先的安装工程量图形估算软件。 它以AutoCAD为平台,采用“虚拟构造”进行三维建模。 广泛应用于建筑工程的招投标、施工及竣工阶段。 工程量估算。 软件通过自动布局或快速识别CAD电子图建模,构建真实的三维图形模型,辅以灵活开放的估算规则设置,完美解决给排水、通风、排水等专业安装工程的估算需求。空调、电力和暖气。 模型搭建快速、细节精细、计算范围全面、计算规则专业、数据汇总快速。 全面解决安装造价人员手工估算、误差多、调整混乱、汇总繁琐、审核晦涩、效率低、工作繁重等问题,有效提供80%的手算工作效率,使估算人员完全掌握摆脱手工计算的麻烦。
产品功能介绍
1.建模思路简单,计算方便快捷
Swell的安装计算软件的计算机建模思想是两点一线三维,简称“213”。 软件通过设备识别和布局,将起止设备的二维图转换为三维模型。 通过尺寸模型的智能提取和智能识别,人工估算管道的宽度和面积。

2.水、电、暖通所有专业估算的设备数量统计
传统的手工计算,安装预算人员从图纸上将设备、部件、管件等一一统计,然后按类别统计在表格中。 可想而知,小型工程系统的复杂性是简单的,但这些简单的机械劳动却是枯燥乏味的。 太古安装通过一键智能识别斯维尔计价软件教程,可将各种专业设备的预制构件进行转换安装。 估算完成后,可以区分机型、楼层、系统,并生成统计报告。

3、管道智能汇总,水、电、暖通所有专业估算
传统的手工测量需要先逐段测量图纸上的厚度,然后用估算器进行总结。 另外,管道、风道等预制构件的不同估算项目,加上各种垂直管道,都非常冗长。 例如:消防喷淋专业可根据内径对照表或危险等级一键转换(图1); 风道的扩展面积是根据宽度手动换算汇总的。 同时,软件具有开放的本地化估算规则模板,可以根据实际需要使用。 调整管道及配件的估算方法。 风管弯头、三通、四通的面积可以根据中心线计算,也可以根据交叉面积估算(如图2); 软件可以通过系统图功能快速读取项目中的所有配电箱系统。 一次全部读取,读取到的配电箱线路信息可以复制到其他项目使用,无需重新识别(图3)。
图1:

图二:

图3:

4. 水、电、暖通等专业全面评估,手动布置配件
Swell的安装测量软件遵循外部规则,允许一键手动布局(请注意:是一键手动布局),快速完成工程量的估算。 例如:手动布置管道沟及管夹(图1)、手动布置接线盒(图2)、手动布置管道支吊架(图3)等,数量准确,施工可用作为参考。

图1
图二

图3
5.一键碰撞检查,虚拟模型指导施工
在安装计算模型中组合各种专业图形,一键检测不同专业管道的碰撞现象。 还可以将土木工程模型导出到安装模型进行碰撞检查,防止设计不当造成施工损失。 估算精度高,三维模型最终与实际施工模型一致,保证工程量准确,指导后期施工。

6、报表功能强大,可随意查看、验证、输出
软件与EXCEL表格联动,可相互导出、导入。 添加了大量接近手工计算的报告,使表格估算的数量准确且易于理解。 可以查看估算对应的视口,更容易计算数量。 一键框选输出,让金额随心所欲输出。

